Te huur : ca. 540 m² VVO kantoorruimte vanaf ca. 20 m² VVO alsmede ca. 1.915 m² hangaar en parkeerplaatsen op eigen terrein.
Adres : Horsterweg 27, 6199 AC Maastricht-Airport.
Kadastrale gegevens : Gemeente Beek, sectie F, nummer 4838 (ged.).
Locatie : Het kantoorverzamelgebouw “Jet Center” is gelegen op een goed bereikbare locatie op bedrijvenpark Techno Port Europe direct naast Maastricht Aachen Airport en heeft direct uitzicht over en toegang tot de start- en landingsbanen. In de directe omgeving zijn diverse bedrijven gevestigd in de logistieke en zakelijke dienstverlening (veel luchtvaart gerelateerd). Het gebouw bestaat deels uit een hangaar met rolpoort alwaar diverse toestellen staan geparkeerd en worden onderhouden. Naast de hangaar is een horecazaak met lunchroom gevestigd. Een betere plek, pal naast de start- en landingsbaan, is er niet om jouw business vleugels te geven!
Bereikbaarheid : De strategische locatie van bedrijvenpark Techno Port Europe garandeert een optimale bereikbaarheid. Dankzij de centrale ligging langs de snelweg A2/E25 en A76/E314 is het object uitstekend bereikbaar met eigen vervoer. Ook de openbaar vervoer voorzieningen zijn op peil.
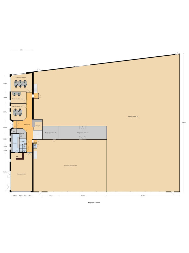
Indeling object : Begane grond bestaande uit kantoorruimte, brasserie en hangaar. De eerste en tweede verdieping bestaande uit kantoorruimtes. Deze kantoorruimtes zijn beschikbaar vanaf ca. 20 m² tot 560 m² VVO, instapklaar en per direct beschikbaar.
De werkplaats in de hangaar kan ruimte bieden aan technisch onderhoud aan vliegtoestellen en de eigen hangaar poort biedt direct toegang tot het luchtruim. De hangaar is tevens beschikbaar voor vliegtuigstalling.
Beschikbaar :
– Begane grond (brasserie) 0.10 en 0.11, totaal ca. 115 m²;
– Begane grond Hangaar, ca. 1.915 m²;
– 1e verdieping ruimte 1.8, 1.9, 1.12, 1.13, 1.14 en 1.15, totaal ca. 206 m²;
– 2e verdieping ruimte 2.2, 2.3, 2.4, 2.7 en 2.8., totaal ca. 225 m².
Zie bijgevoegde tekeningen.
Parkeren : op eigen terrein zijn voldoende parkeerplaatsen gelegen.
Voorzieningen :
– Pantry en toiletruimten per verdieping;
– Centrale wifi en in elke kantoorruimte een vaste netwerk aansluiting;
– Systeemplafond met verlichting;
– Airco;
– Vloer- en wandafwerking.
Huurprijs :
– Kantoorruimte : vanaf € 135,00 / m² / jaar excl. BTW;
– Brasserie : € 125,00 / m² / jaar excl. BTW;
– Hangaar : € 65,00 / m² / jaar excl. BTW.
Huurtermijn : 5 jaar met telkens 5 jaar verlenging. Andere termijnen in overleg.
Betaling : Per maand vooruit te voldoen.
BTW-belaste verhuur : Verhuurder opteert voor met BTW-belaste verhuur. Indien huurder niet voldoet aan de wettelijke criteria (90% BTW norm) zal er een BTW-vervangende opslag gehanteerd worden, zodanig dat verhuurder gecompenseerd wordt wegens het niet kunnen verrekenen van de BTW op de investeringen, alsmede de BTW op de exploitatiekosten.
Bankgarantie : Conform het ROZ-model ten bedrage van 3 maanden huur te vermeerderen met een bedrag ter grootte van de BTW.
Indexering : Jaarlijks overeenkomstig het maand prijsindexcijfer volgens het consumentenprijsindexcijfer (CPI) reeks CPI alle huishoudens (2015 = 100), gepubliceerd door het Centraal Bureau voor de Statistiek (CBS). De huurprijs zal nimmer minder bedragen dan de huurprijs van het voorafgaande jaar. De eerste huurprijsindexering zal plaatsvinden
12 maanden na datum huuringang.
Huurovereenkomst : Standaard ROZ-contract model kantoorruimte met bijbehorende algemene bepalingen
Bestemming : Conform het vigerende bestemmingsplan (Bedrijvenpark Techno Port Europe, Beek) wordt aangegeven “luchthavengebonden bedrijven met bijbehorende kantoren”.
Voorschot servicekosten : € 48,94 / m² / jaar exclusief BTW.
Servicevoorzieningen :
– Nutsvoorzieningen (gas, water en elektra);
– Onderhoud algemene voorzieningen;
– Onderhoud parkeerterrein;
– Stoffering;
– Schoonmaak algemene ruimten en parkeerterrein;
– Glazen wassen;
– Administratiekosten;
– Waterschapslasten.
Energielabel : A.
Opleveringsniveau : In huidige staat, dan wel in nader overleg.
Aanvaarding : Per direct.























