Te huur : ca. 220 m² VVO kantoorruimte op 1e, 2e en 3e verdieping.
Adres : Markt 26 en 27 (ged.), 6211 CJ Maastricht.
Locatie : gelegen op de Markt in het historisch centrum van Maastricht.
Bereikbaarheid : goed per auto en openbaar vervoer. Het kernwinkelgebied is op korte loopafstand gesitueerd.
Indeling object :
– entree en toegang tot verdiepingen middels trappenhuis;
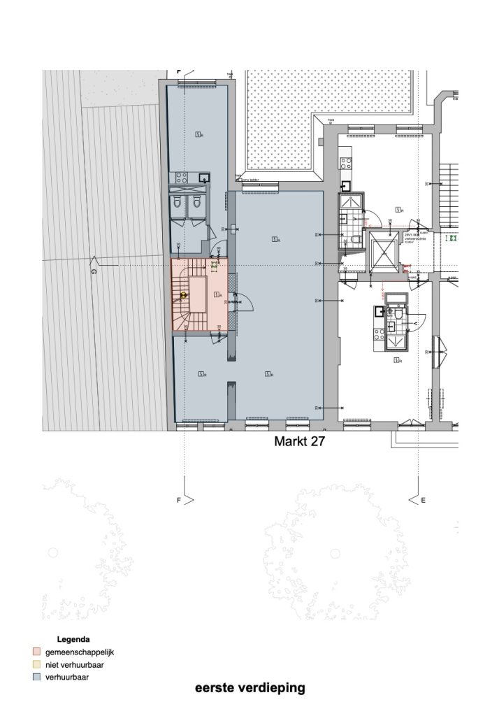
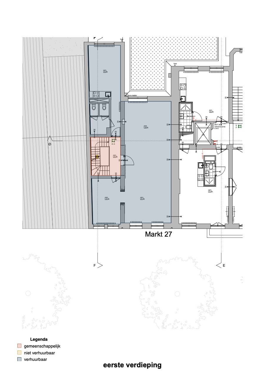
– 1e verdieping : ca. 84 m² VVO kantoorruimte met pantry en toiletgroep;
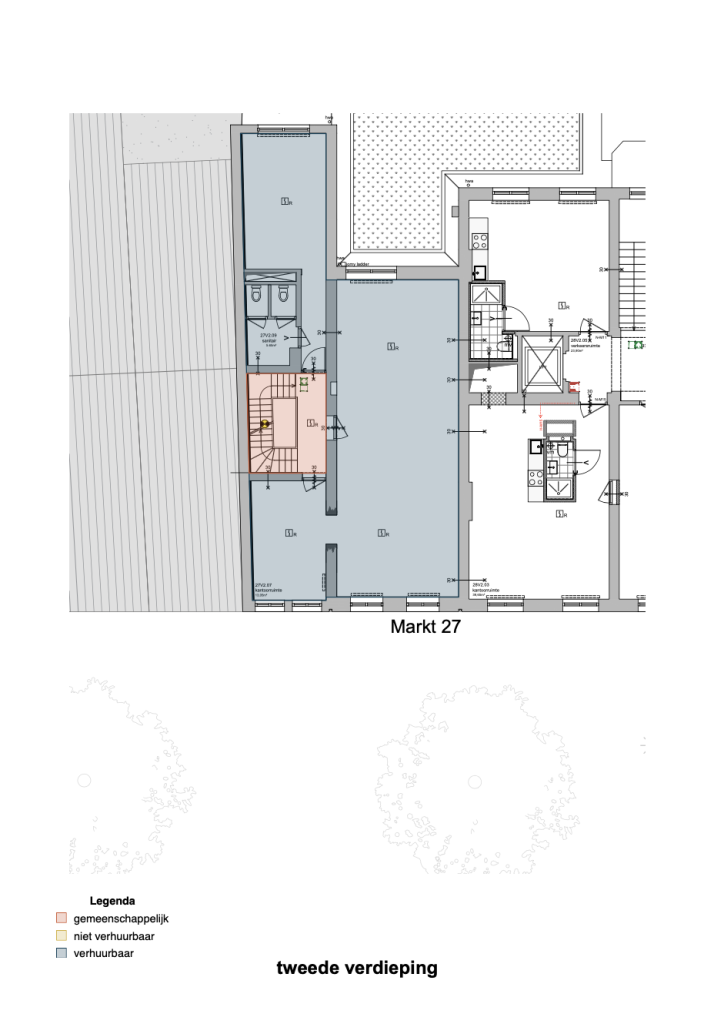
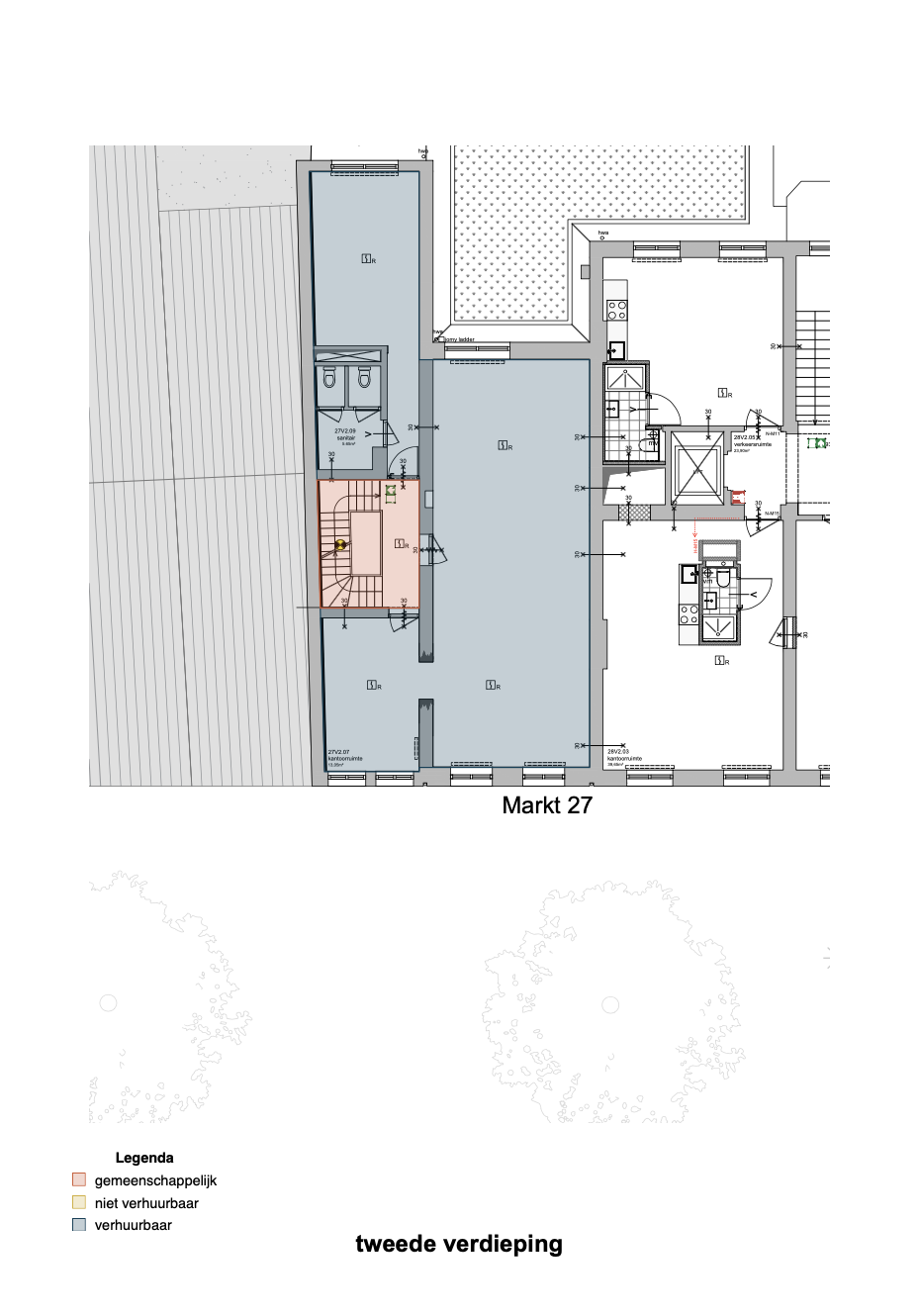
– 2e verdieping : ca. 84 m² VVO kantoorruimte met toiletgroep;
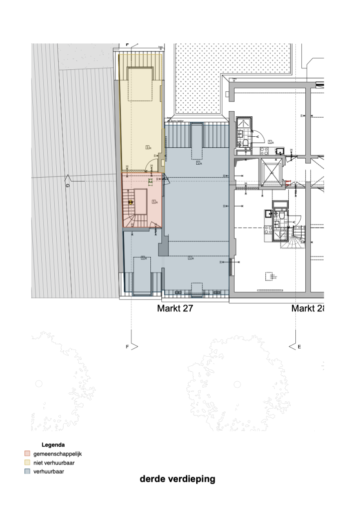
– 3e verdieping : ca. 52 m² VVO kantoorruimte.
Parkeren : parkeergarages Mosae Forum en Bassin zijn op loopafstand gelegen.
Voorzieningen :
– CV-installatie;
– energie-, water- en internetaansluiting;
– pantry;
– toiletruimten.
Opleveringsniveau : in huidige staat van afwerking en met de thans aanwezige voorzieningen.
Bestemming : kantoordoeleinden.
Huurprijs : € 3.000,00 / maand exclusief BTW.
Huurtermijn : 5 jaar en telkens 5 verlengingsjaren. Andere termijnen zijn bespreekbaar.
Betaling : per maand vooruit te voldoen.
BTW-belaste verhuur : verhuurder opteert voor met BTW-belaste verhuur. Indien huurder niet voldoet aan de wettelijke criteria (90% BTW norm) zal er een BTW-vervangende opslag gehanteerd worden, zodanig dat verhuurder gecompenseerd wordt wegens het niet kunnen verrekenen van de BTW op de investeringen, alsmede de BTW op de exploitatiekosten.
Bankgarantie : conform het ROZ-model ten bedrage van 3 maanden huur te vermeerderen met een bedrag ter grootte van de BTW.
Indexering : jaarlijks overeenkomstig het maand prijsindexcijfer volgens het consumentenprijsindexcijfer (CPI) reeks CPI alle huishoudens (2025 = 100), gepubliceerd door het Centraal Bureau voor de Statistiek (CBS). De huurprijs zal nimmer minder bedragen dan de huurprijs van het voorafgaande jaar. De eerste huurprijsindexering zal plaatsvinden 12 maanden na datum huuringang.
Huurovereenkomst : standaard ROZ-contract model kantoorruimte met bijbehorende algemene bepalingen.
Aanvaarding : in overleg.
Voorbehoud : goedkeuring eigenaar.





















