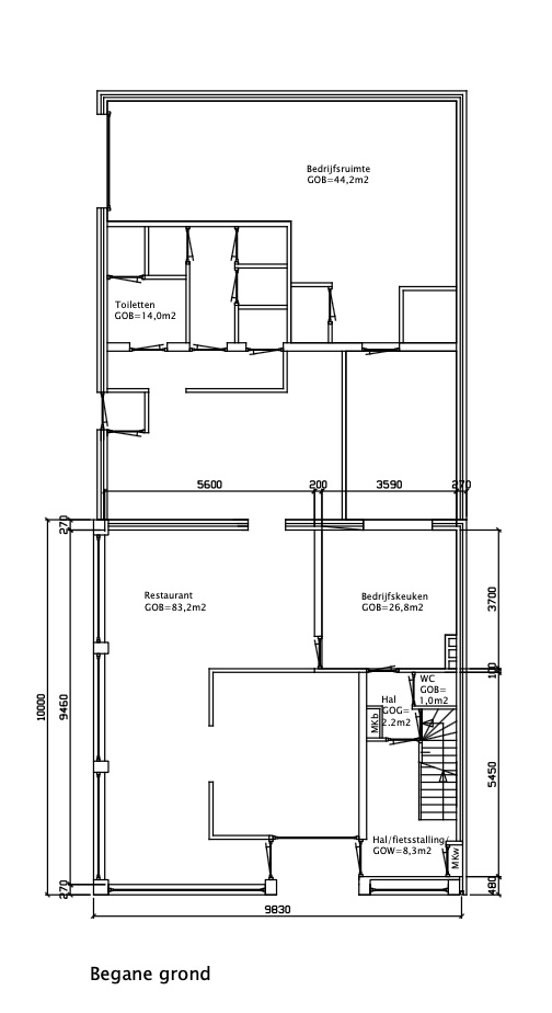
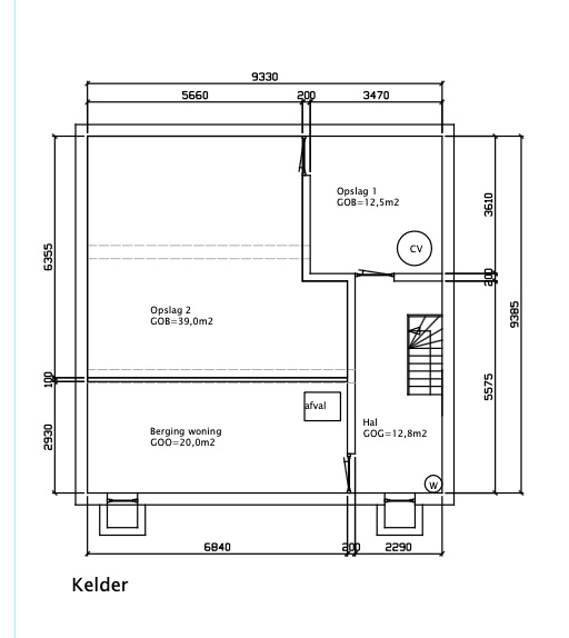
Te huur : ca. 170 m² BVO horeca- / winkelruimte op begane grond en ca. 40 m² magazijnruimte in het souterrain.
Adres : Niels Bohrstraat 34, 6227 VW Maastricht.
Locatie : gelegen in de wijk Heer, waar o.a. Yoga & More, Nagelstudio Kim Colier, Fit-in, Bakkerij De Lekkerbek, Dierenkliniek Maastricht, Parketmeester Erka, Reisburo Globus, Fysio Jahae, Snackpoint Heer en Mondzorg Heer in de directe omgeving gelegen zijn. Winkelcentrum De Leim (met o.a. HEMA en Kruidvat) is op loopafstand gelegen.
Bereikbaarheid : goed per auto en openbaar vervoer, laden en lossen voor de deur mogelijk.
Indeling object : ca. 170 m² BVO horeca- / winkelruimte op begane grond en ca. 40 m² magazijn- / opslagruimte in het souterrain.
Frontbreedte : ± 14 m¹ (hoeklocatie).
Parkeren : voldoende gratis parkeergelegenheid voor het pand en langs de doorgaande weg.
Technische voorzieningen : energie- en wateraansluiting.
Bestemming : horeca en detailhandel, branche nader overeen te komen.
Opleveringsniveau : casco, aanvaarding in huidige staat i.v.m. overname restaurant mogelijk (tegen nader overeen te komen
condities).
Huurprijs : € 21.000,00 / jaar exclusief BTW.
Huurtermijn : 5 jaar met telkens 5 jaar verlenging. Andere termijnen zijn bespreekbaar.
Betaling : per maand vooruit te voldoen.
BTW-belaste verhuur : verhuurder opteert voor met BTW-belaste verhuur. Indien huurder niet voldoet aan de wettelijke criteria (90% BTW norm) zal er een BTW-vervangende opslag gehanteerd worden, zodanig dat verhuurder gecompenseerd wordt wegens het niet kunnen verrekenen van de BTW op de investeringen, alsmede de BTW op de exploitatiekosten.
Waarborgsom : ten bedrage van 3 maanden huur te vermeerderen met een bedrag ter grootte van de BTW.
Indexering : jaarlijks overeenkomstig het maand prijsindexcijfer volgens het consumentenprijsindexcijfer (CPI) reeks CPI alle huishoudens (2015 = 100), gepubliceerd door het Centraal Bureau voor de Statistiek (CBS). De huurprijs zal nimmer minder bedragen dan de huurprijs van het voorafgaande jaar. De eerste huurprijsindexering zal plaatsvinden 12 maanden na datum huuringang.
Huurovereenkomst : standaard ROZ-contract model winkelruimte met bijbehorende algemene bepalingen.
Aanvaarding : in overleg.










