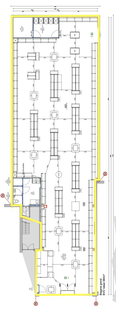
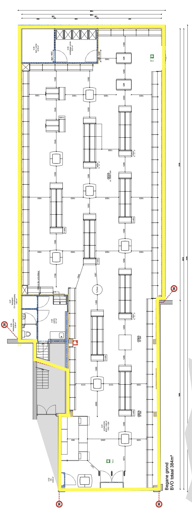
Te huur : ca. 315 m² BVO winkelruimte op begane grond en ca. 90 m² magazijn- / opslagruimte in het souterrain.
Adres : Wycker Brugstraat 20, 6221 EC Maastricht.
Locatie : het object is gelegen aan de centrale as in Wyck. Hier zijn een aantal grootwinkelbedrijven en couleur locale gelegen, zoals Ace & Tate, Monfrance Schoenmode, Amac, Rolex, Mestrini brillen maar ook Specsavers, ICI Paris, Bakkerij Paulissen, Kruidvat en Mc Donalds.
Bereikbaarheid : zeer goed per auto en openbaar vervoer, NS- en busstation op loopafstand.
Indeling object : ca. 315 m² BVO winkelruimte op begane grond inclusief pantry en toilet alsmede ca. 90 m² magazijn- / opslagruimte in het souterrain.
Frontbreedte : ca. 7 m¹.
Parkeren : er zijn voldoende (betaalde) parkeerplaatsen in Wyck.
Technische voorzieningen : energie- en wateraansluiting, pantry, toilet en airco.
Bestemming : detailhandel.
Opleveringsniveau : in overleg, casco conform huurovereenkomst.
Aanvaarding : in overleg.
Huurprijs : € 139.000,00 / jaar exclusief BTW.
Huurtermijn : 5 jaar met telkens 5 jaar verlenging. Andere termijnen zijn bespreekbaar
Betaling : per maand vooruit te voldoen.
BTW-belaste verhuur : verhuurder opteert voor met BTW-belaste verhuur. Indien huurder niet voldoet aan de wettelijke criteria (90% BTW norm) zal er een BTW-vervangende opslag gehanteerd worden, zodanig dat verhuurder gecompenseerd wordt wegens het niet kunnen verrekenen van de BTW op de investeringen, alsmede de BTW op de exploitatiekosten.
Bankgarantie : conform het ROZ-model ten bedrage van 3 maanden huur te vermeerderen met een bedrag ter grootte van de BTW.
Indexering : jaarlijks overeenkomstig het maand prijsindexcijfer volgens het consumentenprijsindexcijfer (CPI) reeks CPI alle huishoudens (2015 = 100), gepubliceerd door het Centraal Bureau voor de Statistiek (CBS). De huurprijs zal nimmer minder bedragen dan de huurprijs van het voorafgaande jaar. De eerste huurprijsindexering zal plaatsvinden 12 maanden na datum huuringang.
Huurovereenkomst : standaard ROZ-contract model winkelruimte met bijbehorende algemene bepalingen.







